ArcNews Online
 

Spring 2003
Search ArcNews
 

NESA Deploys a Complete Business Solution

Denmark's Largest Electricity Company Implements Enterprise GIS

  click to see enlargement
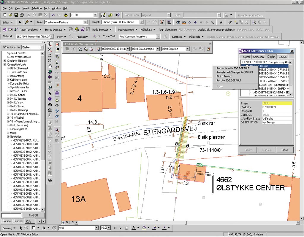
Miner & Miner's Designer was integrated with SAP's Project, Plant Maintenance, and Material Management systems.

In Denmark, the deregulated electricity market allows customers to have free choice of electricity suppliers. This encourages utilities to improve customer service and cut costs. NESA, Denmark's largest electricity company, is focused on strengthening its competitiveness to attract significantly more electricity consumers and grid supply customers. Thus, key priorities in NESA's corporate culture are enhancing, sharing, and exploiting knowledge to expand its existing Business.

NESA is a lead player in the Danish power market. From power generation to electricity supply to customers, NESA is involved at every link along the chain. NESA strives to provide customers with excellent service and has a long-standing tradition for reliably supplying electricity.

Serving a population of nearly one million, NESA has approximately 550,000 customers around greater Copenhagen. NESA distributes approximately 6,000 GWh to customers on a yearly basis and manages transmission and distribution, fiber optic cables, and communication lines. In 2001, NESA supplied 6,347 GWh of electricity through a total of approximately 533,000 connection points along its electricity grid. Approximately 471,000 of those were residential units; the remainder were Business enterprises, shops, schools, etc.

Extensive GIS Implementation

To support NESA's core Business processes and leverage its existing expertise and competitive advantages, NESA invested in an enterprise GIS solution. Since 1995, Esri Business Partner Miner and Miner, Consulting Engineers, Inc. (M&M), and Informi GIS A/S, Esri's Danish distributor, have provided implementation services for NESA's distribution and transmission network system using ArcGIS software-based applications. Over the last three years, NESA, working with M&M and Informi, has completed the enterprise solution implementation. By using the best-of-breed approach, the three companies have chosen technologies and built interfaces to support NESA's work flow and leverage its investment in GIS.

NESA uses Esri's ArcGIS and Miner and Miner's ArcFM to handle the management and presentation of its facility data such as transformers and circuit breakers. Using ArcSDE on a central server, together with ArcEditor/ArcFM, facility data is managed in a central geodatabase. The user community can access the geodatabase and maintain its network assets, issue trace results, support map production, and initiate reports and queries. With ArcIMS, users can also access this data in Web browsers.

Integration With SAP R/3

  click to see enlargement
The overall system is composed of facility data stored in a geodatabase, GIS applications for maintaining the facility data and for design and trouble call applications, and SAP for storing Business attributes on facility and network features stored in the geodatabase. Geographic features, such as transformers, are linked to corresponding technical objects with unique IDs in SAP, and data is shared between the two systems using SAP's Business Application Programming Interfaces (BAPIs).

ArcFM and SAP's R/3 Plant Maintenance system were integrated to link features in the GIS to objects in R/3 to support maintenance and other activities. M&M's Designer was integrated with SAP's Project, Plant Maintenance, and Material Management systems to support design engineering and costing. In addition, NESA uses M&M's Responder and Responder/System Operations Management (R/SOM) applications to manage outage and switching operations in the control room. Responder is integrated with SAP's Customer Interaction Center and Plant Maintenance system to support trouble call operations.

Integration With ArcFM

ArcFM is used within GIS to support the creation and maintenance of facility, asset, and equipment features. To create and maintain corresponding objects in SAP, ArcFM was integrated with SAP's Plant Maintenance system. Users can create, update, and delete objects in SAP that correspond with the evolving network infrastructure within the GIS. Since features are linked, users can access additional information using ArcFM to display SAP asset master data and maintenance status. ArcFM and Plant Maintenance are kept in sync through the integration and consistently reflect the as-built state of the network. Other GIS and SAP applications can then leverage the currency of the data.

Integration for Design

NESA needed an integrated design solution to manage the design process and interface with its core enterprise resource planning (ERP) system, SAP R/3. Leveraging a unified solution platform, Designer links with various applications within R/3 including Plant Maintenance, Material Master, and Project Scheduling. These integrated applications support the entire design process including work request display, design, construction, material identification, costing, and as-built updates.

NESA's designers can easily view the work requests generated by SAP's Project Scheduling within GIS. They can also create designs within GIS and access a list of materials that have been downloaded from the Material Master. In the design process, they can generate a cost report and bill of materials for the customer.

"Our goal was to optimize the process of network engineering at NESA," says Niels Mikuta, NESA's GIS project manager. "We are now able to produce cost quotations faster and more accurately with the integration of the applications to provide our customers with better service. The fully automated process also secures a high level of data quality, making it possible for NESA to document the network precisely and consistently. This is critical as we need to support the integration of GIS with the Outage Management system and Switch Operation Management."

Trouble Call Analysis

Industry deregulation and competition make it more important than ever for utilities to maximize their electric distribution network's reliability as well as minimize service outages to improve customer satisfaction. Analyzing outage calls is essential for dispatching and resolving problems. NESA is using M&M's Responder Trouble Call Analysis (TCA) Engine to support and manage the analysis of outage calls.

NESA's dispatchers are able to use the outage database and TCA Engine to analyze customer calls with respect to the GIS network and create incidents--locations of suspected failures in the network. SAP manages the call information within its Customer Interaction Center application. The TCA Engine periodically queries SAP for this call information before beginning its analysis. The calls are associated with transformers, and then the transformers are aggregated into probable incident locations. The call and incident locations are stored in an ArcGIS geodatabase to be displayed on the Intranet via ArcIMS. Users can then select specific incidents for work crews to investigate. These incidents are then passed back to SAP and forwarded for crew dispatching. When the crews finish the repair, they log this information via remote terminals, which pass data back to SAP and from there to Responder for removal from the open-call and incident queue, allowing the map display to only show those calls and incidents that are open.

System Operations Management

NESA has been using R/SOM to run its 10 kV control room operations. The application is an integrated switch order and operations management system that operates in a high-performance distributed architecture, providing a convenient graphical environment while utilizing data maintained by GIS. The product is based on MapObjects, utilizing coverages and shapefiles that are extracted from the geodatabase on a periodic basis. The application is run in the control room on dual monitors to display the geoschematic data and switch forms. NESA initiated the implementation of the system in early 1999, going live in December 1999 just in time to resolve Y2K problems.

"Switch Operation Management of the 10 kV network is an important function at NESA, and R/SOM makes it possible for us to plan and carry out network switching very efficiently," adds Mikuta. "This ensures our customers better service in terms of continuous power supply availability and reduced outage time in the event of a network fault. The scalability of the system fits well into NESA's strategic plans for a growing number of customers. The product is based on an open architecture, which helped us leverage the integration of the Outage Management System and Switch Operation Management."

By introducing the latest technology, NESA improved its process efficiency and enhanced its customer service and supply reliability. As a result, NESA is now better able to handle a growing number of customers, providing them with sustained and reliable service.

NESA's Business Benefits

Implementing this extensive GIS infrastructure at the utility was part of NESA's goal to create an environment in which it can expand its customer service, introduce streamlined working procedures, improve its earnings potential, and secure greater value for its owners. This fully automated process provides a high level of data quality, making it possible for NESA to document the network precisely and consistently. NESA recently recorded both a net increase in customer numbers and increased sales of electricity.

"The NESA implementation of Esri's ArcGIS and the ArcFM solution, including Designer and Responder, may be one of the most advanced enterprise deployments of GIS anywhere in the world," states Jeff Meyers, Miner and Miner's president.

NESA recently relocated to its new headquarters building in Vangede, Denmark. In addition, the company has undergone a considerable organizational restructuring including information technology and personnel. Ensuring the utility could provide products and services at competitive prices drove NESA to recently deploy a broad GIS solution. NESA focused on Business benefits and competition.

For more information, please contact Osnat (Osi) Arbel, Business analyst, Miner and Miner, Consulting Engineers, Inc. (tel.: 970-223-1888, ext. 149; e-mail: osi@miner.com; Web: www.miner.com).

Contact Us | Privacy | Legal | Site Map